Casa Venta

6566 Stella Maris, bahia blanca, Bahía Blanca, Buenos Aires, 8000

QR Code
Descripción
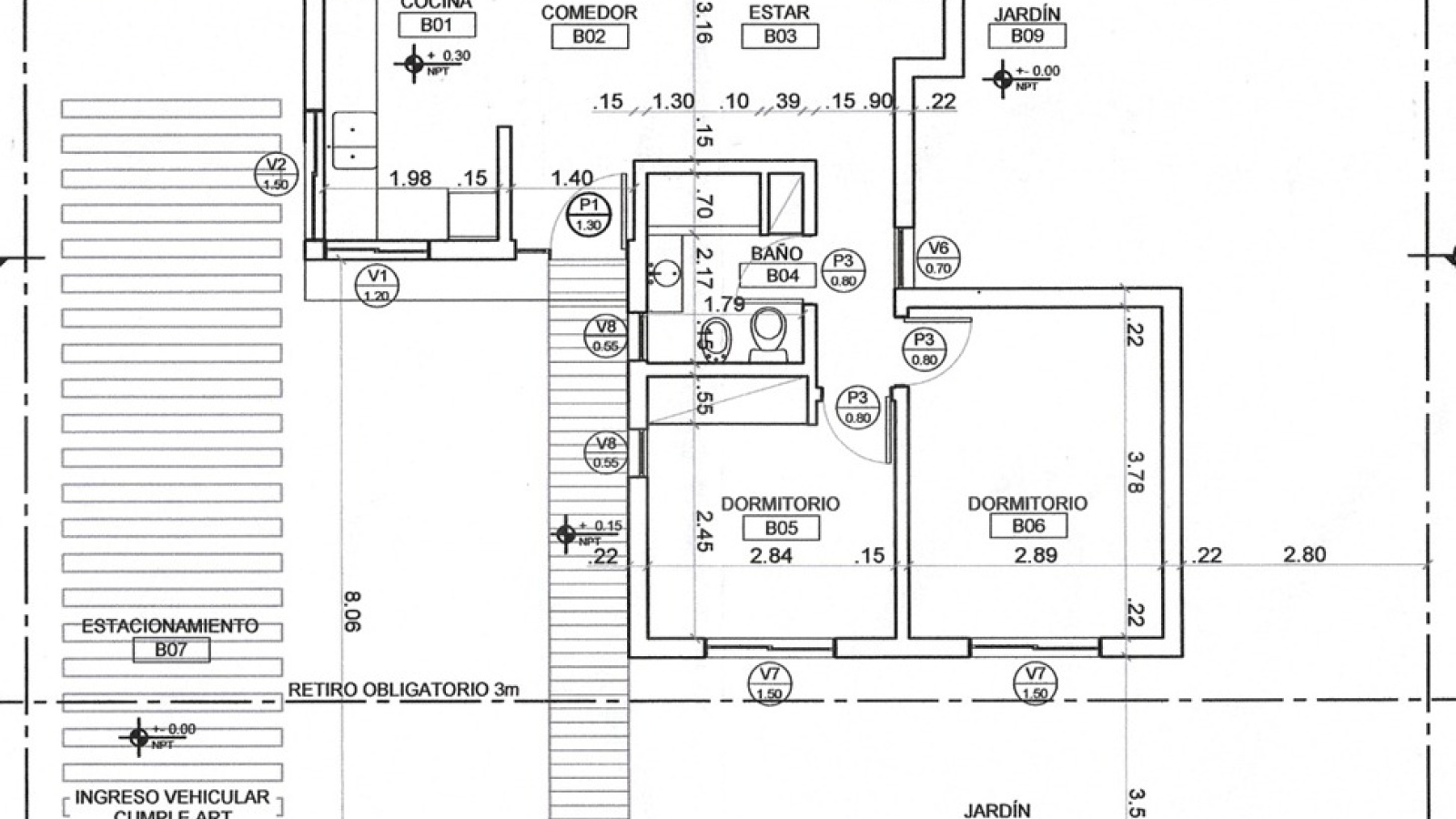
Casa en construcción a la venta de Steel Frame en el barrio 17 de Mayo, pegado al ingreso de la base Comandante Espora. La propiedad se encuentra con todas las instalaciones de gas, agua y desagües realizadas. Para los cerramientos se utilizaron aberturas de aluminio con DVH y materiales de gran calidad con buen espesor de paredes externas y altura, lo que brinda una buena aislación térmica. Conexión para 2 calefactores uno en cada dormitorio, y en el living comedor se dejo espacio para la instalación de hogar. La casa esta compuesta de dos dormitorios, con ventilación natural, un baño completo con ventilación natural y cocina – living comedor con buenas aberturas al contrafrente lo que le da buena luminosidad. En el sector de la bacha de la cocina hay dos ventanas con vistas al frente de la casa. Espacio descubierto para varios autos.
Detalle
Tipo de Propiedad:
Casa
Operación:
Venta
Precio:
U$D40.500
Dormitorios:
2
Baño:
1
Ambientes:
3
Metros construidos:
60 m²
Área del lote:
592 m²
Año de construcción:
2023
Características
Entrada vehicular
Patio
Ubicación
Calle:
Stella Maris
Altura:
6566
Piso:
0
País:
ar
Provincia:
Buenos Aires
Ciudad:
8000
Código postal:
8000
Longitud:
W63° 50' 27''
Latitude:
S39° 15' 11.5''
Casa Venta
Dormitorios:
2
Baño:
1
Metros construidos:
60 m²
U$D40.500
Contacto

    [current_url]

    Comunicate con Nosotros